Search Land - 3397 and 3401 E County Road 16
3397 and 3401 E County Road 16
$2,500,000|Listed: May 28, 2025
MLS#1262213
3397 and 3401 E County Road 16, Loveland, Larimer County, Colorado
Status:Active
Property Type
- Farm
- Ranch
- Acreage
- Equestrian Property
Acreage
55 acres
County
Larimer, Colorado
Format
Sale
Description
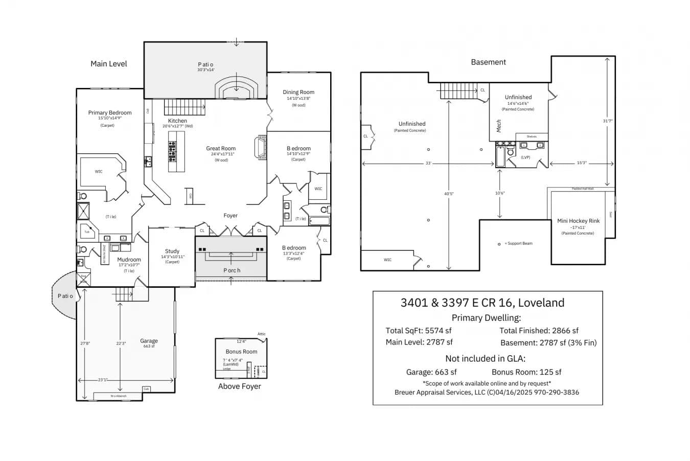
Welcome to a truly rare opportunity to own 55.79 breathtaking acres in a coveted and centralized location, surrounded by prestigious homes and unmatched natural beauty. This extraordinary estate offers unobstructed panoramic mountain views, rolling green fields, and fantastic amenities all wrapped in an atmosphere of serenity. At the heart of the property sits a stunning nearly 5,700 sqft 3 bedroom, 3.5 bathroom luxury residence, meticulously designed with high-end finishes, two gas ranges, a double stainless steel refrigerator, an expansive yet cozy living room, separate dining room, dedicated office space, functional mud room with a dog wash station, and seamless indoor-outdoor flow to capture the views from every angle. Complementing the main home is a beautifully updated, purged, and permitted 1,600+ sqft 3 bedroom, 2.5 bathroom manufactured home (ADU) with it's own dedicated septic system-perfect for guests, extended family, or farm help. Bring the horses! There is plenty of room in the 64x30 ft concrete floor barn complete with two 12x9 ft doors, four 13x12 ft stalls, automatic waters, and large enclosed pens. Additionally, throughout the property there are four lean to's (two 12x8 ft, one 16x12 ft, and one 24x12 ft), one 48x18 ft south-facing hay shed, one 12x8 ft tack shed, and one 7x7 ft multi-use shed. Make use of the 250x150 ft outdoor arena or the 85x170 fenceless riding/warm-up arena currently being used as a sand volleyball court. The 64x30 ft concrete floor shop also with a 12x9 ft door is large enough to fit an addition 8 cars or park your RV, boat or whatever you need! Enjoy the custom firepit with built-in seating while soaking in the most gorgeous sunset you've ever seen! This property has it all, but most of all, the VIEWS are simply unforgettable!
Listing Agent

Liz Crews
Co-Op Member Owner
eXp Realty
Windsor, Colorado
By submitting, you agree to our privacy policy and terms.

Want to learn more about our financing options?
Enter your email below to receive free resources and information.
By submitting, you agree to our privacy policy and terms.





































