Search Land - Lots & Land-Other in Durham
Lots & Land-Other in Durham
$84,000|Listed: Nov 20, 2025
MLS#120951567
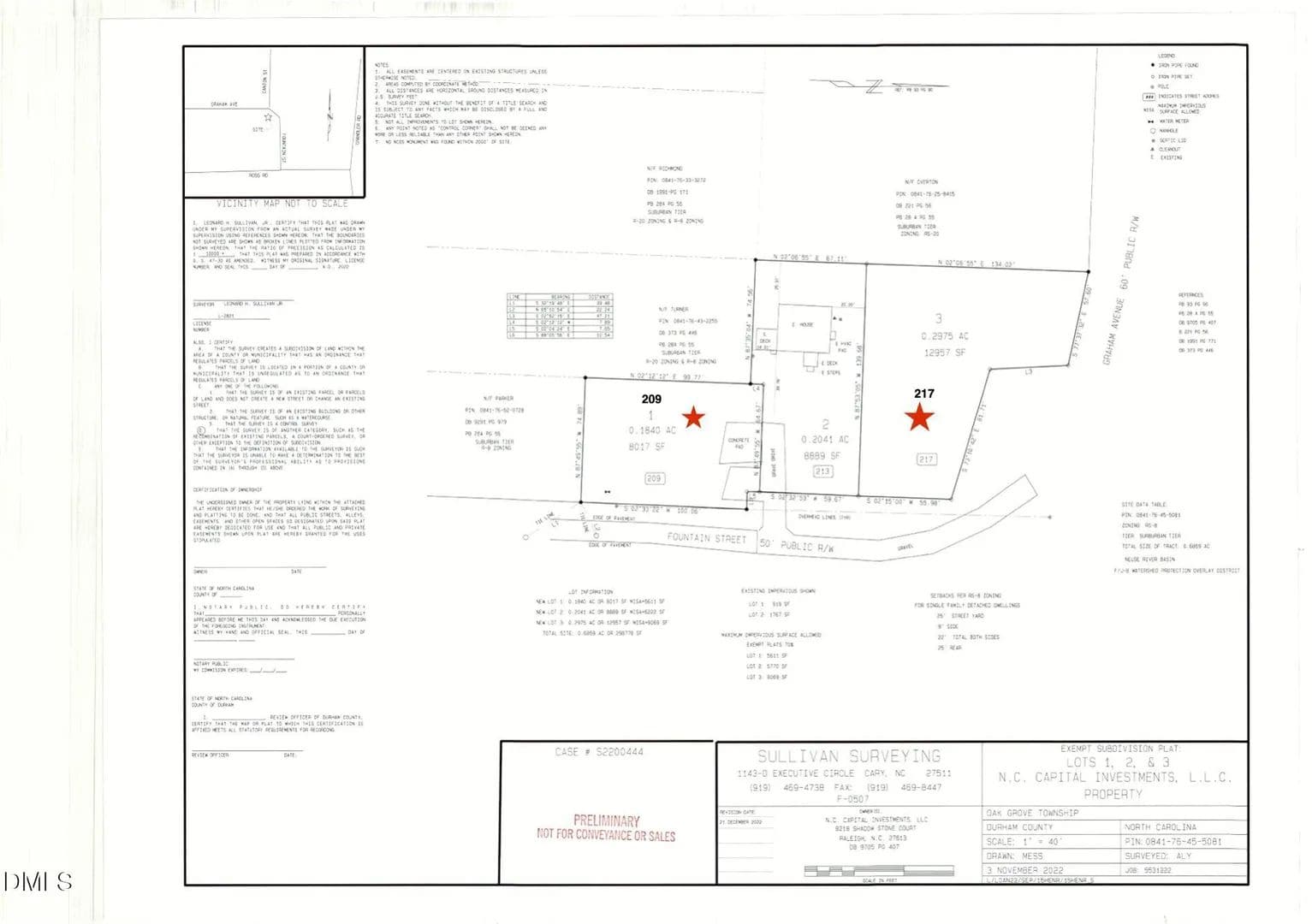
217 Fountain Street, Durham, Durham County, North Carolina
Status:Active
Property Type
- Acreage
Acreage
0 acres
County
Durham
Format
Sale
Description
Attention developers and investors — rapidly growing Durham! Located at 217 Fountain St (12,957 sq. ft.) offering a great opportunity for your next project. Situated in a highly convenient location near Route 98, these lot provide easy access to major roads, shopping, and dining, making them ideal for new development. Public water and sewer connections are nearby (contact Durham County for details), and with no HOA restrictions, you have the freedom to design and build without additional community fees. This is a fantastic investment in an up-and-coming area of Durham. Whether you're looking to build single-family homes, or a custom development, this is a rare opportunity to bring your vision to life. For more details, reach out today!
Listing Agent
David Cordero
Howard Perry and Walston
Raleigh, North Carolina
By submitting, you agree to our privacy policy and terms.

Want to learn more about our financing options?
Enter your email below to receive free resources and information.
By submitting, you agree to our privacy policy and terms.








