Search Land - Lots & Land-Other in Bolton
Lots & Land-Other in Bolton
$1,150,000|Listed: Jul 5, 2024
MLS#1219751
2 Capri Court #A, Bolton, Warren County, New York
Status:Active
Property Type
- Acreage
Acreage
0 acres
County
Warren, New York
Format
Sale
Description
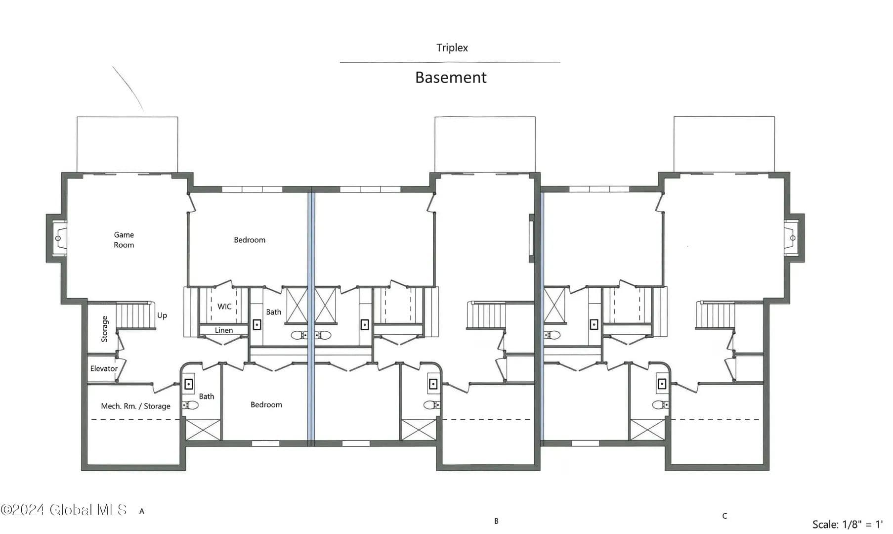
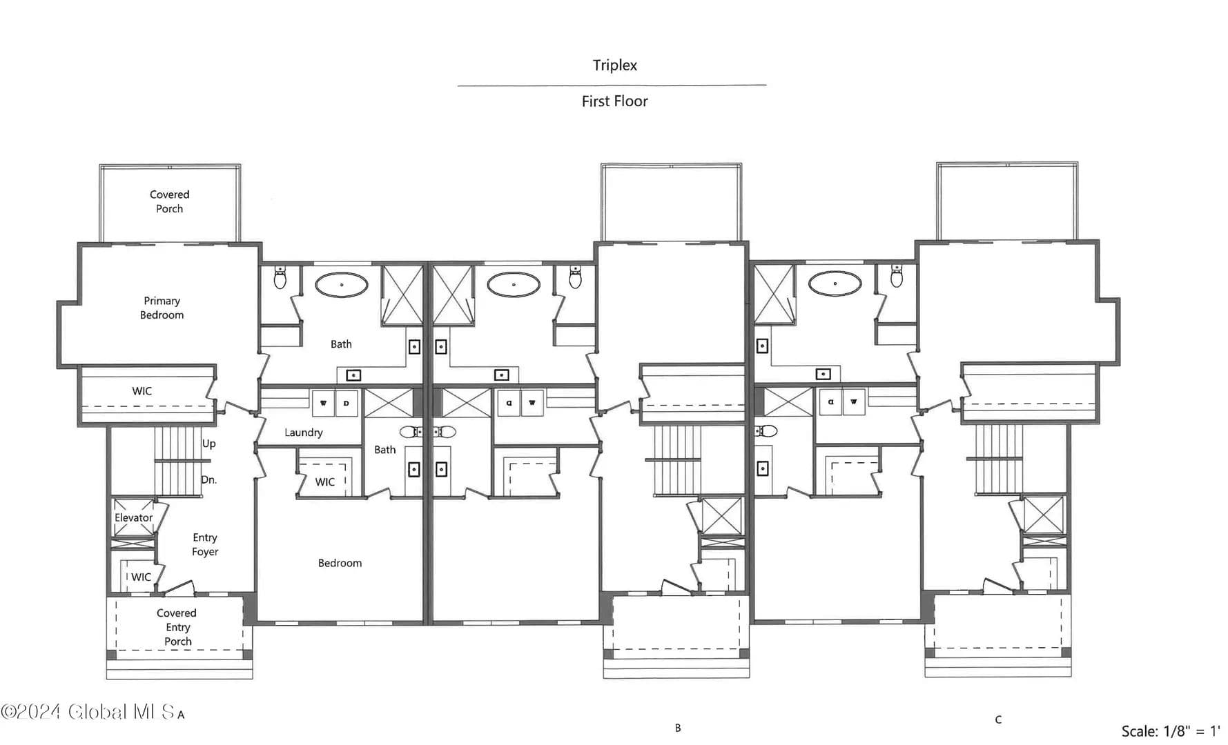
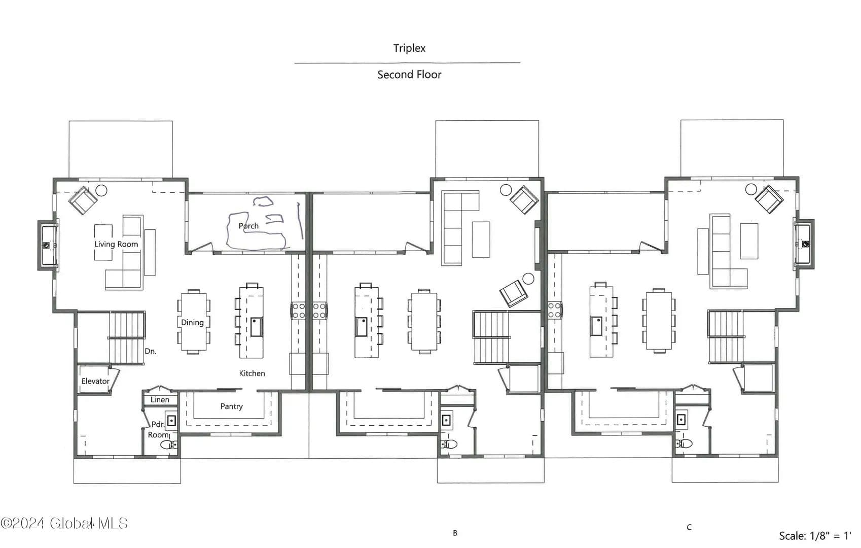
Lakefront lot with a dock! Discover the opportunity to own a third of an approved triplex lot on the serene shores of Lake George. Centrally located between Bolton Landing and Lake George Village, this prime location offers convenient access to local amenities, dining, and entertainment. The lot is approved for a triplex, designed by renowned Witt Construction, offering ample living space perfect for both relaxation and entertainment. Don't miss your chance to own a piece of this exclusive waterfront paradise. Contact us today to learn more about this incredible opportunity! (Price is for the lot only, site work and building costs not included).
Listing Agent

Daniela Massaroni
Co-Op Member Owner
HUNT Real Estate ERA
Glens Falls, New York
By submitting, you agree to our privacy policy and terms.

Want to learn more about our financing options?
Enter your email below to receive free resources and information.
By submitting, you agree to our privacy policy and terms.

















