Search Land - Vacant Land in Macon
Vacant Land in Macon
$22,500|Listed: Aug 7, 2024
MLS#1228826
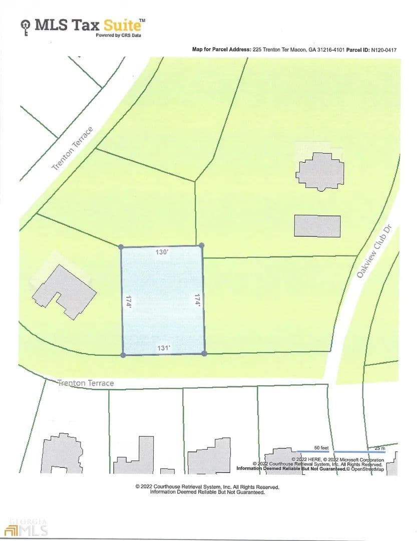
225 Trenton Terrace, Macon, Bibb County, Georgia
Status:Active
Property Type
- Acreage
Acreage
0.48 acres
County
Bibb, Georgia
Format
Sale
Description
Great Lot In Golf Course Community. Cul-de-sac lot in the Oakview subdivision. This .48 acre lot is a great lot to build your dream home. This subdivision has a voluntary HOA of $200 annually. The Oakview Golf Course is privately owned with 18 hole course and a clubhouse with dining facilities and swimming pool.
Listing Agent
Roberta Lasater
Co-Op Member Owner
Access Realty
Warner Robins, Georgia
By submitting, you agree to our privacy policy and terms.
Co-op approved lenders in Bibb County, Georgia:

Find A Loan
Want to learn more about our financing options?
Enter your email below to receive free resources and information.
By submitting, you agree to our privacy policy and terms.


















