Search Land - Redevelopment Land in Canton
Redevelopment Land in Canton
$825,000|Last Updated: May 29, 2026
MLS#1242533
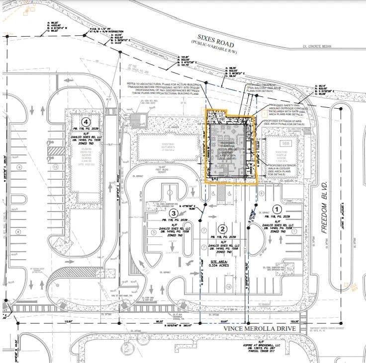
172 Vince Merolla Dr, Canton, Georgia
Status:Active
Property Type
- Commercial Acreage
Acreage
0.33 acres
Format
Sale
Description
Sales Price: $825,000 Lot Details: All site work has been completed, including paving and lighting. Parking lot is shared between Guthrie's and Waffle House Lot Permit: 2-story 4,850 SF Restaurant was previously entitled and permitted. It is ready for a building. A full set of architectural plans are available upon request. Lot Size: 0.334 acres Zoning: TND Utilities: All public utilities available to site. Traffic Count: ~19,650 VPD Neighbors: Waffle House, Guthrie's Chicken, Starbucks, McDonald's, Subway, KFC, Publix, Circle K / Chevron, Moe's Southwest Grill, ModWash Car Wash and more!
Listing Agent

Patrick Barry
Coldwell Banker Commercial Eberhardt & Barry
By submitting, you agree to our privacy policy and terms.

Want to learn more about our financing options?
Enter your email below to receive free resources and information.
By submitting, you agree to our privacy policy and terms.

More land for sale from this broker
View All
$499,000|Listed: Sep 14, 2023
23.72 Acres
Soperton, Georgia, 30457













