Search Land - Vacant Land in Jackson
Vacant Land in Jackson
$637,856|Last Updated: May 22, 2026
MLS#198162485
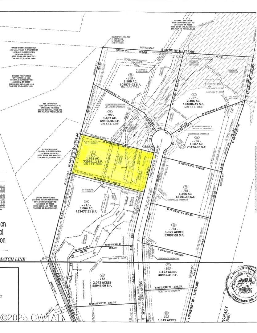
71 Nolan Cove, Jackson, Tennessee
Status:Active
Property Type
- Acreage
Acreage
1.66 acres
Format
Sale
Description
Prime Commercial B-5 lot in North Jackson, Located 3 miles north of I-40 (Exit 80) B-5 Allows Retail Stores, Wholesale Business with <5000 SF Warehouse. Garden Center, Office/Government Buildings
Listing Agent
Lee Godfrey
Barnes
Jackson, Tennessee
By submitting, you agree to our privacy policy and terms.
Co-op approved lenders in null County, Tennessee:

Find A Loan
Want to learn more about our financing options?
Enter your email below to receive free resources and information.
By submitting, you agree to our privacy policy and terms.















