Search Land - Vacant Land in Oakland
Vacant Land in Oakland
$349,000|Listed: Nov 12, 2025
MLS#381584283
739 Campbell St, Oakland, Alameda County, California
Status:Active
Property Type
- Acreage
Acreage
0.1 acres
County
Alameda
Format
Sale
Description
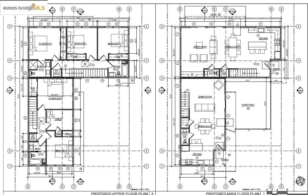
Opportunity Knocks in West Oakland! Prime lot available for sale in vibrant West Oakland, perfectly located close to BART, freeways, and downtown. Take advantage of this rare chance to build your dream duplex with city-approved plans already in place. This booming area offers incredible potential for growth and investment-don't miss out on this fantastic opportunity to invest in one of Oakland's most promising neighborhoods. Contact us today for more information.
Listing Agent
David Newton
625-Coldwell Banker Realty - NorCal
Oakland, California
By submitting, you agree to our privacy policy and terms.

Want to learn more about our financing options?
Enter your email below to receive free resources and information.
By submitting, you agree to our privacy policy and terms.





