Search Land - Lots & Land-Other in Whitefish
Lots & Land-Other in Whitefish
$1,100,000|Listed: Mar 11, 2025
MLS#579970296
1000 Wisconsin Avenue, Whitefish, Flathead County, Montana
Status:Active
Property Type
- Acreage
Acreage
0.53 acres
County
Flathead, Montana
Format
Sale
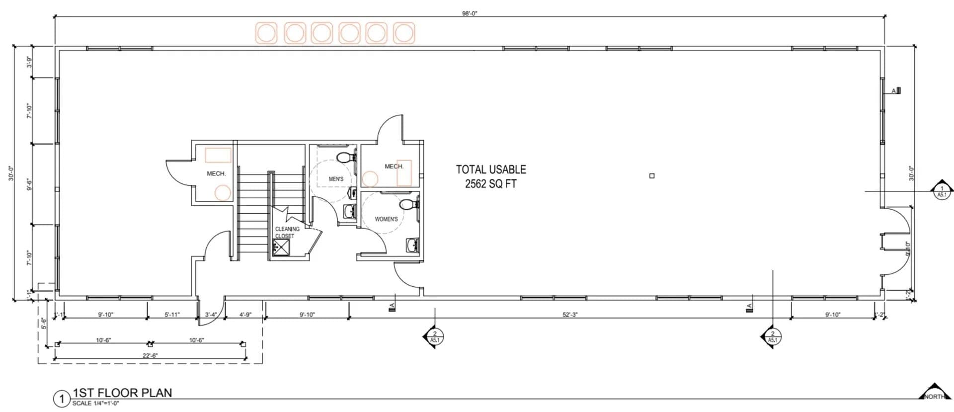
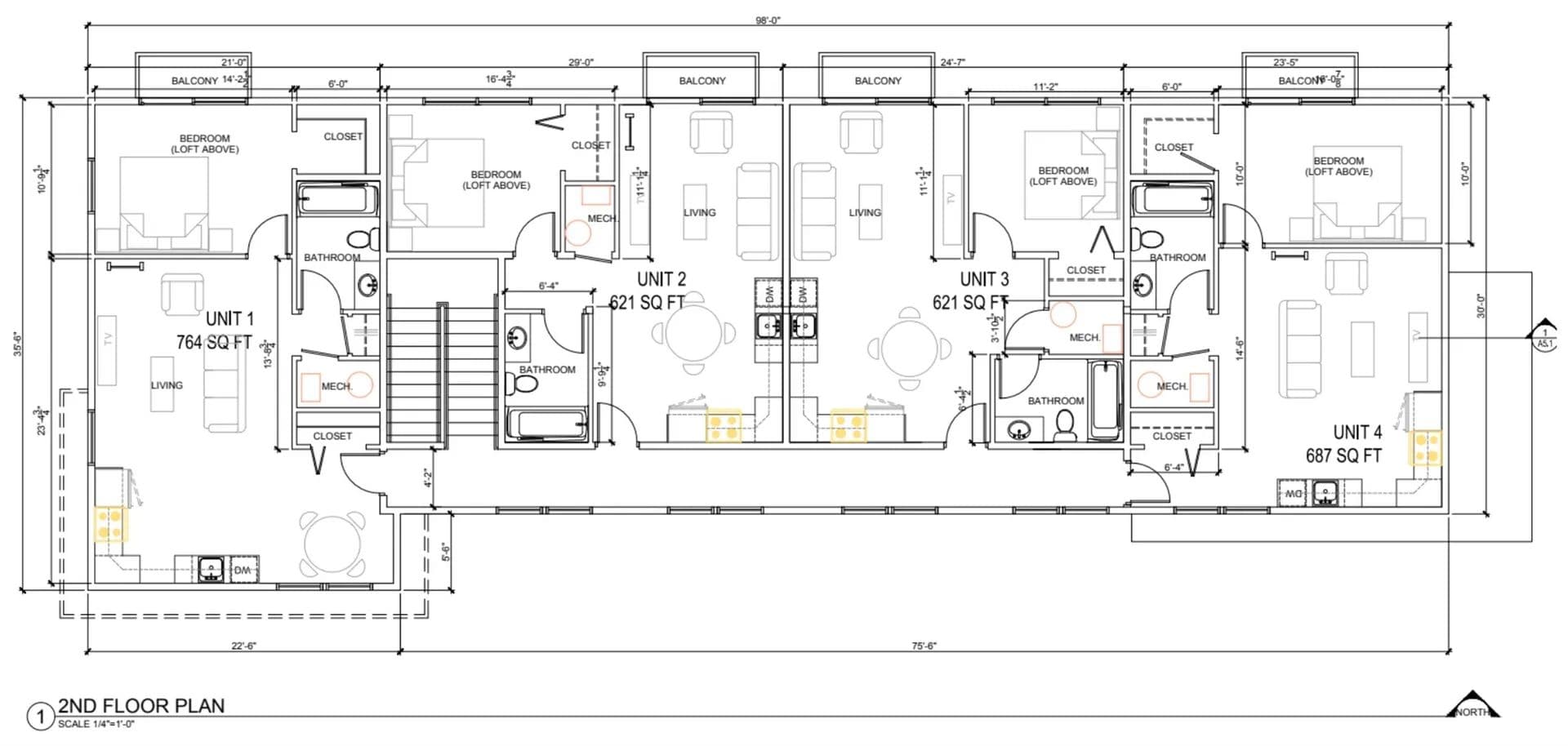
Description
A rare opportunity awaits with this fully permitted .53-acre lot, ready for immediate construction. Located in a high-traffic area on Wisconsin Ave, this site offers unparalleled visibility and is ideally positioned to accommodate a national or local tenant. The current approved plans feature four high end residential units on the second floor, along with 2,563 sq ft of commercial space on the first floor – perfect for a wide range of businesses. Situated on the main route to and from Whitefish Mountain Resort, with an AADT of 10,530, this location ensures excellent exposure and accessibility for both residents and commercial tenants. Don’t miss out on this exceptional opportunity in one of Whitefish’s most sought-after commercial area.
Listing Agent

Tucker Tonjum
Co-Op Member Owner
Coldwell Banker Mountain Properties
By submitting, you agree to our privacy policy and terms.
Co-op Approved Lender
Want to learn more about our financing options?
Enter your email below to receive free resources and information.
By submitting, you agree to our privacy policy and terms.













