Search Land - Vacant Land in Nokomis
Vacant Land in Nokomis
$389,000|Listed: Jan 8, 2026
MLS#597806744
4984 Topsail Drive, Nokomis, Sarasota County, Florida
Status:Active
Property Type
- Acreage
Acreage
0.26 acres
County
Sarasota, Florida
Format
Sale
Description
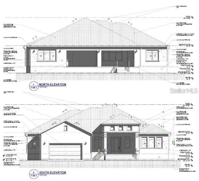
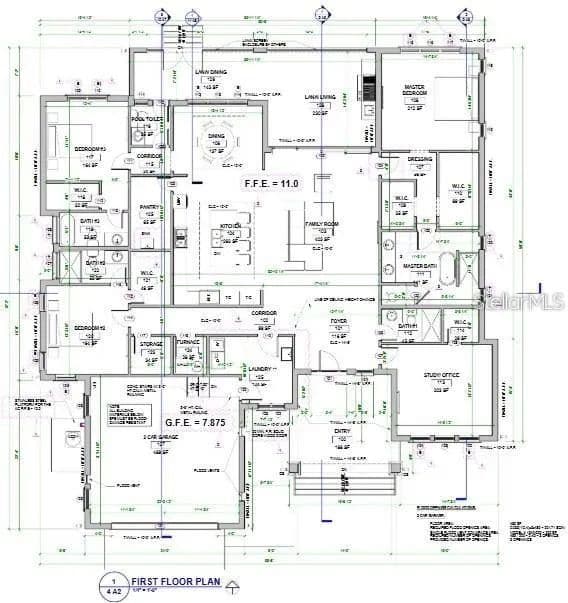
Offered AS-IS, this partially completed residential project presents a rare opportunity to build a custom home in the highly desirable Blackburn Estates community. Construction to date includes completed footers and stem walls filled with soil. The sale conveys active permits, approved building plans, a survey, drainage plan, and the full permit set, along with remaining building materials-most notably a complete package of high-end, impact-resistant hurricane-rated windows and doors. Buyers may choose to continue with the current builder or engage a builder of their choice, with all remaining construction to be completed at the buyer's expense. Surrounded by multi-million-dollar homes and located just minutes from some of the area's most beautiful beaches, the property also offers convenient access to the Intracoastal Waterway, ideal for kayaking, fishing, and waterfront recreation. An exceptional opportunity to complete a custom residence in a premier location-projects of this caliber in Blackburn Estates are seldom available.
Listing Agent
Danielle Dietrich
Co-Op Member Owner
615-Coldwell Banker Realty - Florida
Venice, Florida
By submitting, you agree to our privacy policy and terms.

Want to learn more about our financing options?
Enter your email below to receive free resources and information.
By submitting, you agree to our privacy policy and terms.

























