Search Land - Vacant Land in Shirley
Vacant Land in Shirley
$2,999,000|Last Updated: May 27, 2026
MLS#688559732
0 Windsor Way, Shirley, Middlesex County, Massachusetts
Status:Active
Property Type
- Acreage
Acreage
43 acres
County
Middlesex
Format
Sale
Description
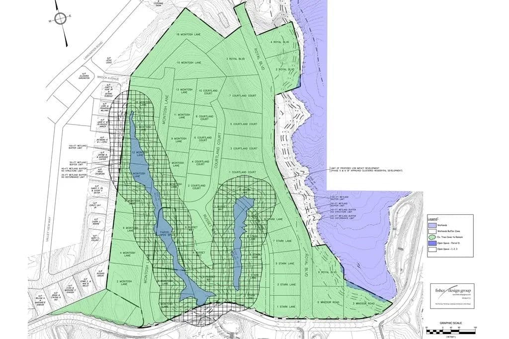
Remarkable opportunity. Remaining lots of 20-year-old subdivision for sale. Part of Apple Orchard Estates in Shirley. 48 lots on 30 acres had been approved and are being sold as one package with 13 acre Parcel "K" which is approved for an additional 100+ sewer connections (possible apartment building). Buyer will obtain new permits because wetlands have migrated since original approvals. Seller has a new plan for 37 lots on the 30 acres parcel that work with new wetland maps. See attached docs. Buyer will build roads with curbing, utilities and drainage. Utilities are located on Windsor Road. The 48 Lots are taxed as separate building lots and can be seen on the State GIS Viewer. Each lot gets its own tax bill from the Town of Shirley and pays a fee to Apple Orchard Estates HOA. Recent similar sales of homes in Shirley have approached $800,000. Much documentation is available. Buyers and/or their brokers must register with listing broker to access additional documentation.
Listing Agent
Ezra Stillman
601-Coldwell Banker Realty - New England
Brookline, Massachusetts
By submitting, you agree to our privacy policy and terms.

Want to learn more about our financing options?
Enter your email below to receive free resources and information.
By submitting, you agree to our privacy policy and terms.












