Search Land - 1628 Philema Road South
1628 Philema Road South
$475,000|Listed: Sep 23, 2024
MLS#999077484
Philema Road South, Leesburg, Lee County, Georgia
Status:Active
Property Type
- Acreage
Acreage
1.7 acres
County
Lee, Georgia
Format
Sale
Description
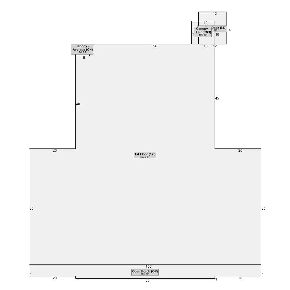
This property has been previously used as a grocery store, then most recently, a meat processing plant. The processing facility is 7,675 SF +/-. There is a 9' x 8' roll up door on the front of the building, and an 8' x 8' roll up door on the rear of the building, along with a receiving dock with a 48" height. There is 3 phase power and a 400 amp electrical panel. The entire interior of the processing plant is refrigerated. There is a large warehouse to the rear of the main building that totals 6,000 SF +/- that has a large, 14' x 14' roll up door.
This property has many use possibilities, and could be easily tailored to a variety use needs. For more information, or to schedule your tour, please call today.
Listing Agent

Jay Chambless
Co-Op Member Owner
Southeastern Land Group
By submitting, you agree to our privacy policy and terms.

Want to learn more about our financing options?
Enter your email below to receive free resources and information.
By submitting, you agree to our privacy policy and terms.





























