Search Land - Vacant Land in Malibu
Vacant Land in Malibu
$425,000|Listed: Apr 14, 2025
MLS#148222704
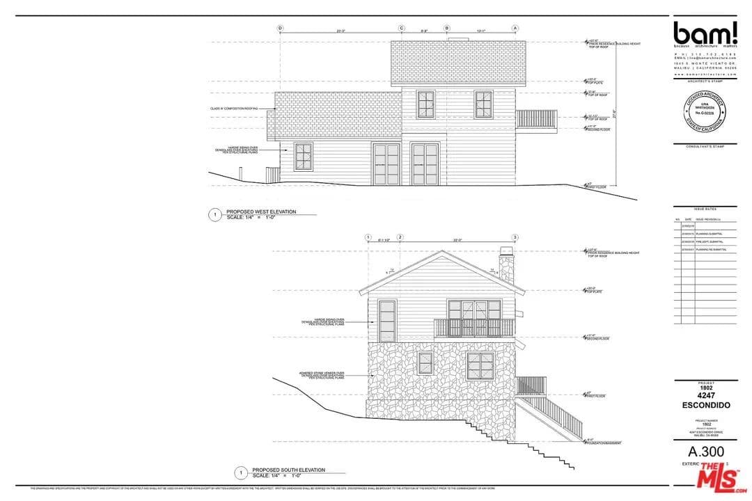
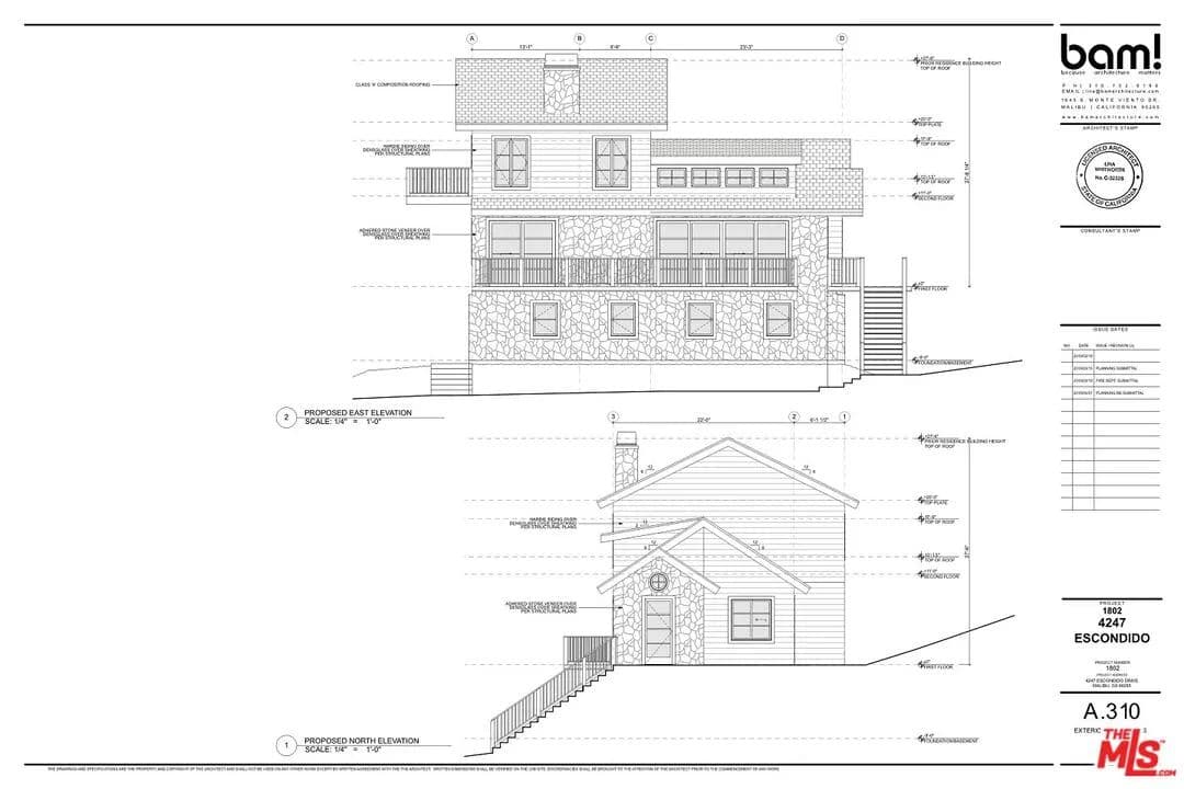
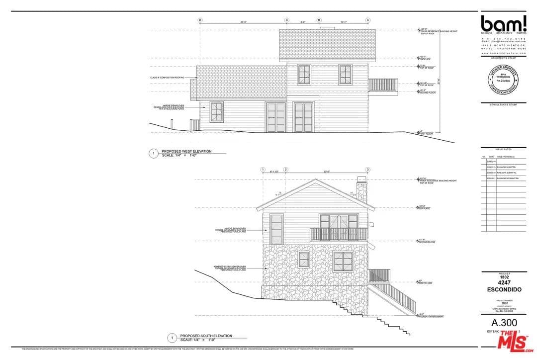
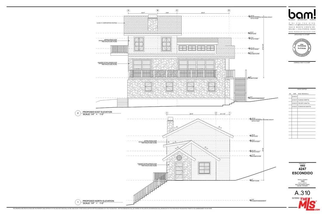
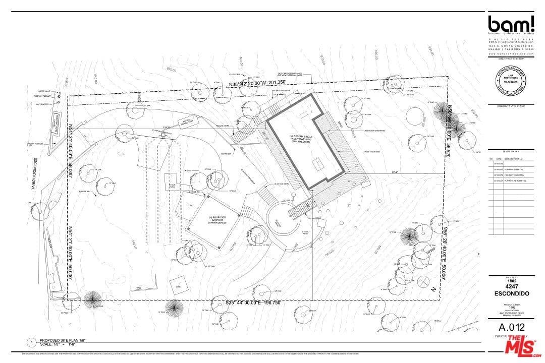
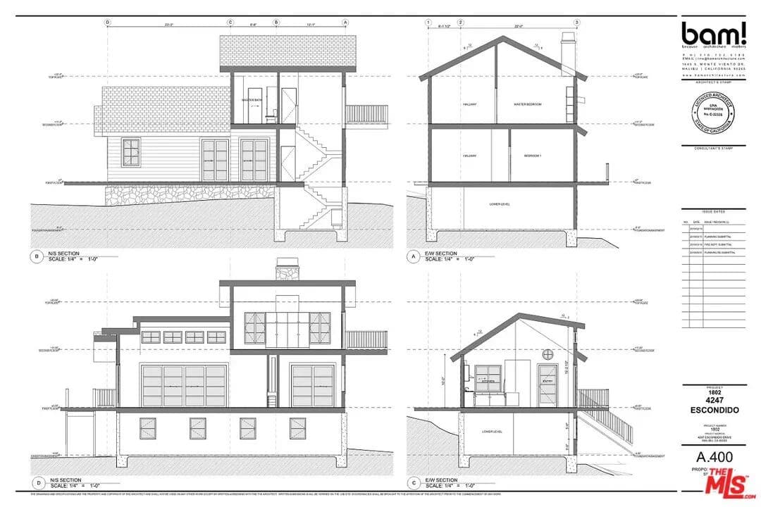
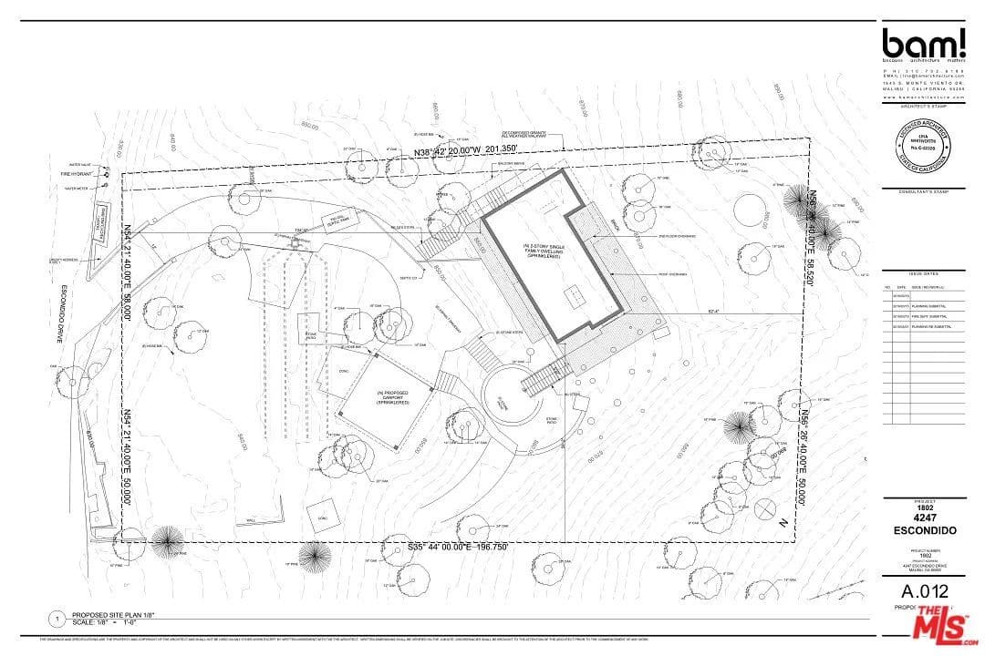
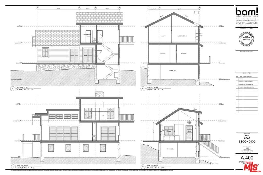
4247 Escondido Dr, Malibu, Los Angeles County, California
Status:Active
Property Type
- Acreage
Acreage
0.5 acres
County
Los Angeles, California
Format
Sale
Description
1/2 Acre /Ocean View Malibu Fire Rebuild Lot in Desirable and Charming Escondido /Latigo Canyon. Malibu's Best Land Buy! Property has hundreds of thousands of dollars in improvements already ... like buying a $200k lot... This Home site has previous gated paved driveway and graded building site ready for your new home. Previous home was approximately two story 1700 sq.ft with 400 sq.ft carport and storage room under first floor of house . Property includes parcels 4461 020 006 - 12,573 sq.ft. and 007- 9,917 sq.ft -22,490 sq.ft approximately - 1/2 acre - Large flat yard for garden with mature Oak Trees surrounding this property. Very quiet and private location with only the sound of the near by running creek . Wonderful location - only 3 miles to PCH/Ocean and minutes from Pepperdine University , the center of Malibu with shopping and restaurants. Tremendous Opportunity and savings with Easy Rebuild Process . Includes Water meter , septic system , retaining wall , graded pad , no biology or soils required and fast process for obtaining approvals for similar size house in same location as previous home. A Very Special Property!
Listing Agent
William Moss
Co-Op Member Owner
624-Coldwell Banker Realty - SoCal
Malibu, California
By submitting, you agree to our privacy policy and terms.

Want to learn more about our financing options?
Enter your email below to receive free resources and information.
By submitting, you agree to our privacy policy and terms.







































