Search Land - Lots & Land-Other in Oswego
Lots & Land-Other in Oswego
$59,950|Listed: Nov 28, 2023
MLS#1243347
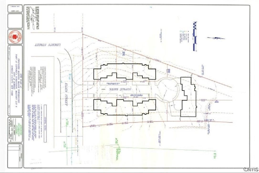
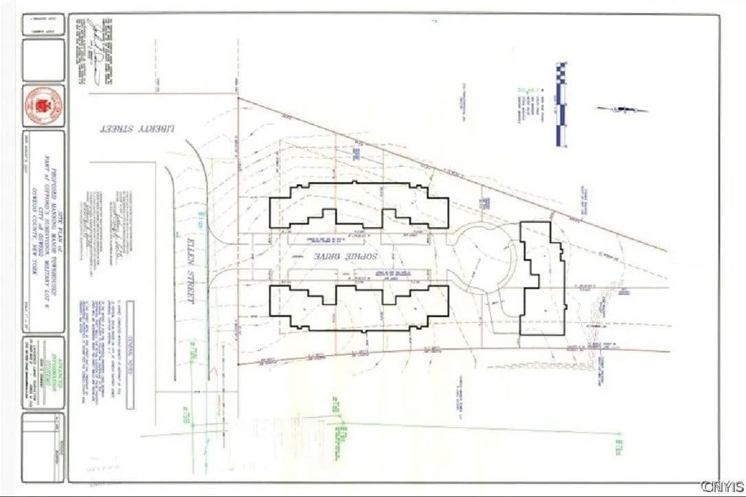
235 Ellen (lots 1-2-3) Street, Oswego, Oswego County, New York
Status:Active
Property Type
- Acreage
Acreage
1.41 acres
County
Oswego, New York
Format
Sale
Description
Here's an opportunity to own building lots in this City of Oswego planned and approved development. All infrastructure is in place. With all site plans and blueprints already approved, a purchaser could start construction right away. Local lender willing to work with a potential buyer. This listing is consisting of two separate purchase possibilities. $59,950 is the price is for the three lots (#1-2-3) across from existing townhomes. The two lots at the end of Sophie Dr. (#4-5 ) can be purchased separately or as a total package for $63,750.
Listing Agent

Ed Fayette
Co-Op Member Owner
CENTURY 21 Galloway Realty
By submitting, you agree to our privacy policy and terms.

Want to learn more about our financing options?
Enter your email below to receive free resources and information.
By submitting, you agree to our privacy policy and terms.




















