Land Pro AI Chat is Live (Beta)
Now available on every listing page. Test it out as we continue refining the tool.
Search Land - Custom 2-Bed, 2-Bath Home on 20 Fenced Acres with Pond, Porches & Pasture for Horses – Near Cave City, Arkansas
$382,500|Listed: Jul 21, 2025
MLS#1271658
1066 AR Hwy 58, Cave City, Sharp County, Arkansas
Status:Active
20 acres
Sharp
Sale
Charming Custom Home on 20 +/- Acres with Pond, Porches & Privacy – Just Minutes from Cave City, AR
Escape to peaceful country living with this gorgeous custom-built home nestled on 20 +/- gorgeous acres just outside of Cave City, Arkansas. Tucked off a paved road for easy access yet surrounded by nature, this 2019-built home offers the perfect blend of modern comfort and rustic charm — ideal for a growing family, hobby farm, or peaceful retirement retreat.
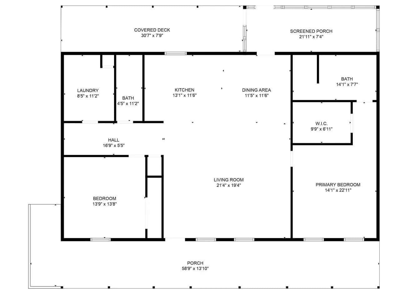
Step onto the full-length front porch and take in the views, or unwind on the screened-in back porch overlooking your private acreage. With approx. 1,728 heated and cooled square feet all on one level, this home features a warm, open layout with custom finishes throughout.
Inside you’ll find:
2 spacious bedrooms
2 full bathrooms
Open-concept living and dining
Custom cabinetry and thoughtful design touches with a large Island
Large Laundry Room
Bright natural light and beautiful countryside views
Step outside and you’ll enjoy:
A nice-sized pond in the front yard — great for fishing or scenic relaxation
Fenced acreage — perfect for a horse or two, or a some livestock
Gently rolling pasture and mature shade trees
Turnkey and move-in ready with utilities in place
Whether you're sipping coffee on the porch, watching wildlife by the pond, or building your dream homestead, this property offers peace, privacy, and possibility.
At Mossy Oak Properties Selling Arkansas, we know that buying a home can feel overwhelming, especially if it’s your first time. That’s why we go above and beyond to make you feel welcome the moment you walk through our doors. Our office is right here in Cave City, Arkansas, at 8111 North St. Louis Street. We’ll greet you with a smile, guide you back to the conference room, and connect you with trusted lenders—either by phone or Zoom—so you can explore financing options and start your homeownership journey with confidence.
We want every client to feel comfortable, respected, and heard. No question is ever a silly question. Whether this home is your stepping stone, first home, or forever home, we’re here to walk with you every step of the way.
Listed with Mossy Oak Properties Selling Arkansas.Contact Pamela Welch at 870-897-0700 or the office at 870-495-2123 to schedule your private tour. Equal Housing Opportunity.

Co-Op Member Owner
Mossy Oak Properties Strawberry River Land and Homes
By submitting, you agree to our privacy policy and terms.

Enter your email below to receive free resources and information.
By submitting, you agree to our privacy policy and terms.


Premier Listing
$340,000|Listed: May 3, 2021
136 Acres
Zion, Arkansas,

Premier Listing
$424,900|Listed: Mar 24, 2021
1.5 Acres
Batesville, Arkansas, 72501

Premier Listing
$249,000|Listed: Apr 18, 2021
5 Acres
Concord, Arkansas, 72523

Premier Listing
$149,000|Listed: Dec 2, 2020
2 Acres
Evening Shade, Arkansas, 72532