Search Land - Honey Trout Farm
Honey Trout Farm
$900,000|Listed: Feb 4, 2026
MLS#192443446
5432 E Highway 218, Monroe, Union County, North Carolina
Status:Under Contract
Property Type
- Farm
- Ranch
- Acreage
- Equestrian Property
- Home with Acreage
- Home
Acreage
7 acres
County
Union
Format
Sale
Features
- Equine Facilities
- Home
- Corrals
- Arena
- Barn
- Work Shop
- Pond
Documents
Description
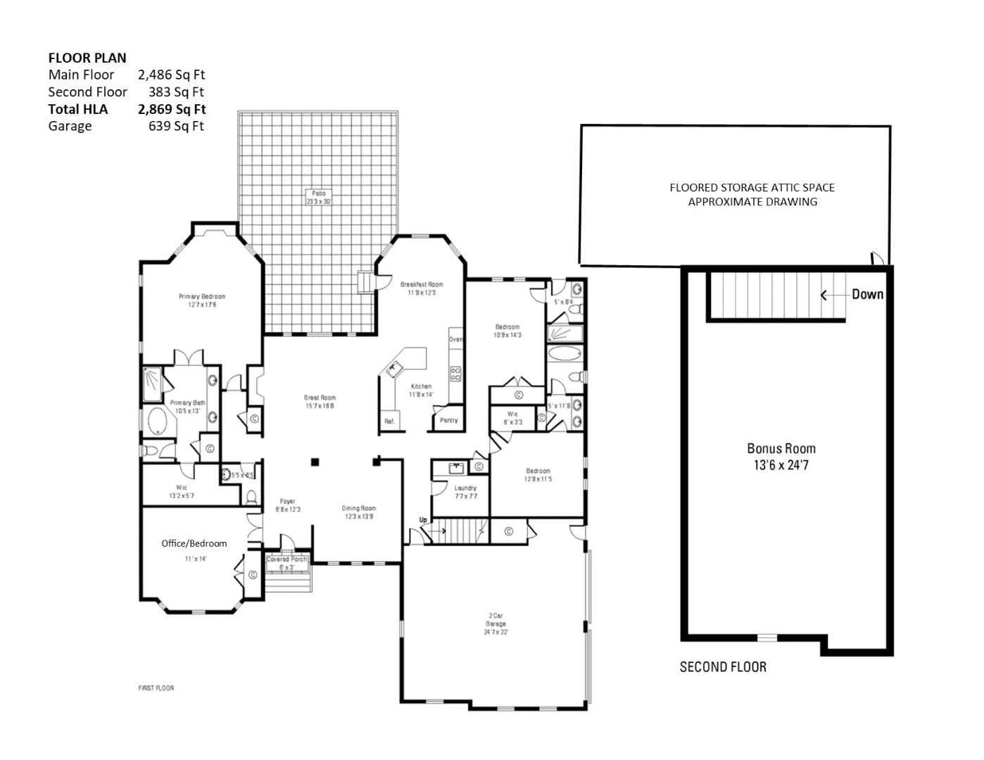
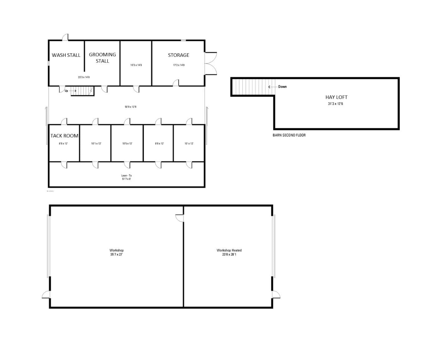
Honey Trout Farm offers an ideal setup for buyers with multiple interests. Located in the Piedmont School District at the end of a long paved driveway, this property features a well-established horse farm surrounded by similar acreage properties. Equestrian amenities include a 5-stall barn with stall mats, fans, fly mist system, walk-up hay loft, wash and tack areas, and four stalls with Dutch doors opening to the dry lot/riding area. Horses also have access to two fenced pastures with 3-board, vinyl, and/or electric fencing, one with shade trees. The grounds are thoughtfully landscaped with established flower beds, hydrangeas, river birch trees, and a pond that adds both visual interest and a natural outdoor gathering point. A separate shop building includes a climate-controlled, finished lounge or playroom, providing flexible space for hobbies, vehicles, recreational equipment, or workshop use. The full brick home offers expansive windows overlooking the landscaped grounds, pond, and farm areas. The split/open floor plan features a primary suite with sitting area and fireplace on one side of the home, along with an additional bedroom or office, while guest suites are located on the opposite side for privacy. Interior details include refinished hardwood floors, chair rail molding, crown molding, and columns that maintain an open yet defined layout. Updates completed between 2015 and 2025 include refinished hardwood floors, kitchen granite countertops, appliances, roof, paver patio, HVAC systems, sump pump, lighting fixtures, water softener, and more. Convenient location with a direct route to I-485 and easy access to Monroe and Mint Hill.
Listing Agent

Breedlove Farms Estates and Land
Co-Op Member Owner
Premier Sotheby's International Realty
Charlotte
By submitting, you agree to our privacy policy and terms.
Co-Listing Agent

Want to learn more about our financing options?
Enter your email below to receive free resources and information.
By submitting, you agree to our privacy policy and terms.

More land for sale from this broker
View All
Premier Listing
$4,000,000|Listed: Feb 3, 2026
92.54 Acres
Walnut Cove, North Carolina, 27052

Premier Listing
$4,900,000|Listed: Mar 5, 2026
1.12 Acres
Bluffton, South Carolina, 29910

Premier Listing
$1,650,000|Listed: Feb 4, 2026
29.66 Acres
Polkton, North Carolina, 28135

















































