Search Land - Property from 9.4 Acres Old Highway 431 - KW
Property from 9.4 Acres Old Highway 431 - KW
$650,000|Listed: Jan 30, 2026
MLS#446803806
9.4 Acres Old Highway 431, Owens Cross Roads, Madison County, Alabama
Status:Active
Property Type
- Recreational Land
Acreage
9.4 acres
County
Madison
Format
Sale
Description
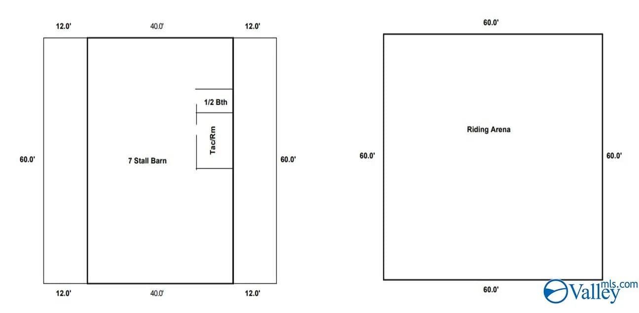
Nestled in the heart of North Alabama's scenic countryside 5 min from Hampton Cove & Robert Trent golf course, this expansive property offers the perfect blend of peaceful rural living & easy access to modern conveniences. Imagine building your custom dream home or homes on either of the two parcels(5 acre & 4.4), with ample room to create the lifestyle you've always envisioned-whether that's a spacious family estate, equestrian set-up or add to existing one, or a private retreat with multi-generational haven. The 5 acre includes a functional 7 horse stall with tack room, enclosed & outdoor riding arena. There's a bathroom & space to lounge.
Listing Agent

Isabel Rodriguez
KW Huntsville Keller Williams
By submitting, you agree to our privacy policy and terms.
Co-op Approved Lender
Want to learn more about our financing options?
Enter your email below to receive free resources and information.
By submitting, you agree to our privacy policy and terms.



















