Search Land - Home with ADU Income bearing
Home with ADU Income bearing
$599,000|Listed: Nov 18, 2025
MLS#490485986
10213 Thomas LN, Dripping Springs, Travis County, Texas
Status:Active
Property Type
- Home
Acreage
0.44 acres
County
Travis, Texas
Format
Sale
Features
- Home
- Electricity
Description
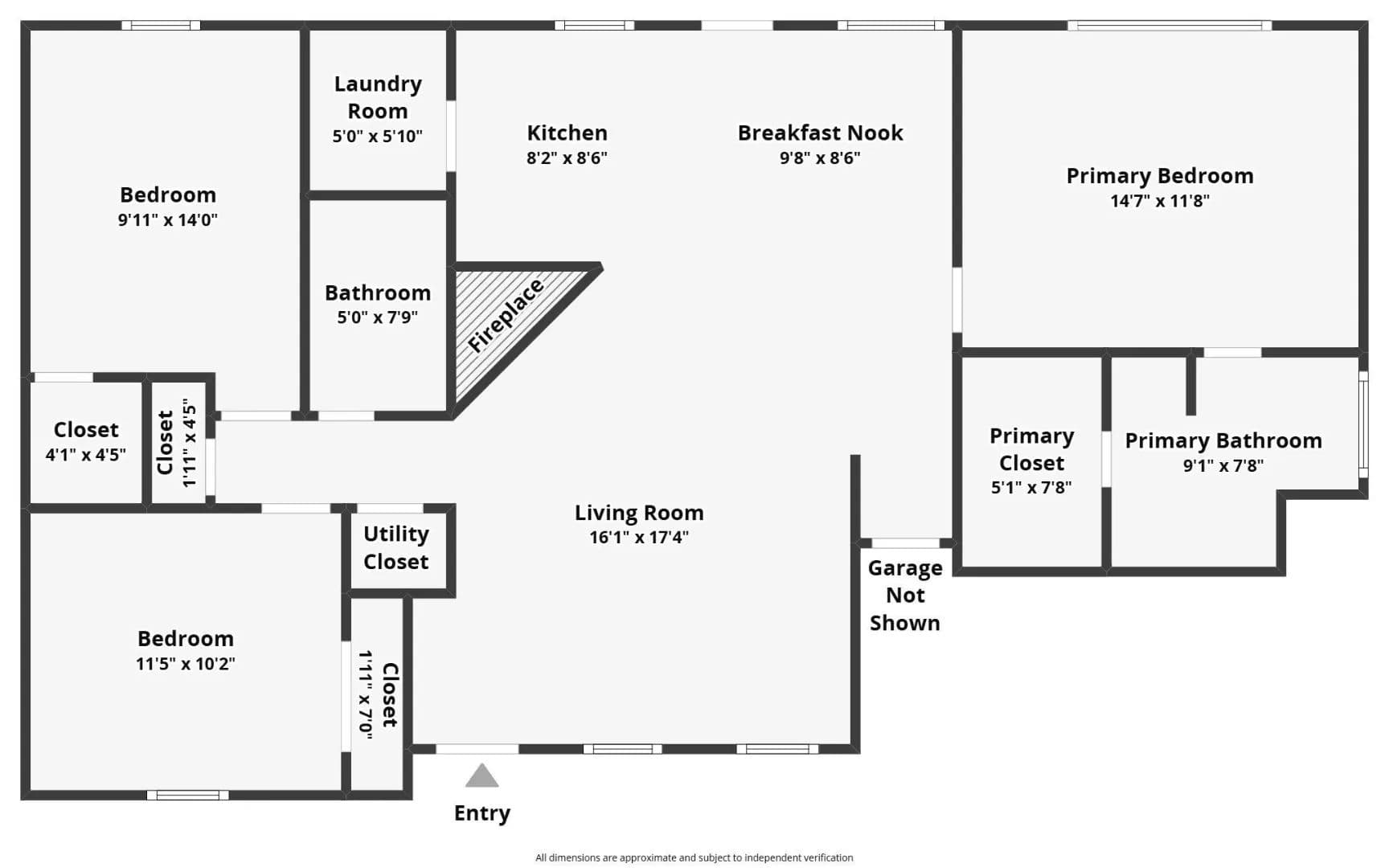
Lender paid rate buy-down to 4.99% first 2 yrs!! An idyllic home situated in the highly sought-after community of Deer Creek Ranch has so many beautiful things to offer! Many trees adorn this property. Nestled on a spacious double .44 acre lot and located towards the back of the neighborhood. When you walk up, you have a charming front porch. Perfect for watching the sunrise with your favorite cup of coffee. This home features three bedrooms, two bathrooms, and 1,239 square feet of spacious living space. Your living room has high ceilings and stained concrete floors. The focal point is the wood-burning fireplace. It features floor-to-ceiling stone and a rustic mantle. Perfect for curling up with a good book. Your living room opens up seamlessly into your kitchen. Your kitchen features granite countertops, a peninsula-style breakfast bar, and a breakfast area. Your spacious primary is perfect for unwinding & relaxing. Your ensuite features an extended double vanity, a large walk-in shower with a seat, & WIC. Your second bedrooms are generously sized. Your secondary bathroom features a single vanity and a tub/shower combination. Venture to the backyard. You have a large covered patio. The highlight of this property is the pool, which features a waterfall. Imagine taking a cool plunge on a hot summer day. The main house has a water filtration system, stained concrete, and wood floors. NO CARPET! . You also have an income-producing guest house, which features 975 square feet, a spacious kitchen, a living area, one bedroom, one bathroom with laundry, a covered patio, a carport, and is privately fenced. It features a walk-through gate to the pool, currently rented for $1,500 per month (includes water, septic & mowing). This home is situated in the highly sought-after area of the Lake Travis acclaimed school district. Great location, playground, community lake, low tax rate, close to main roads, restaurants, shopping, Hill Country Galleria, and so much more.
Listing Agent

Cheryl Fowlkes
Co-Op Member Owner
Superior Town & Country Group by eXp Realty
Dripping Springs , Texas
By submitting, you agree to our privacy policy and terms.
Co-op Approved Lender
Want to learn more about our financing options?
Enter your email below to receive free resources and information.
By submitting, you agree to our privacy policy and terms.






























































