Search Land - Property from 2022 Akins Road - KW
Property from 2022 Akins Road - KW
$599,000|Listed: Aug 1, 2025
MLS#492382065
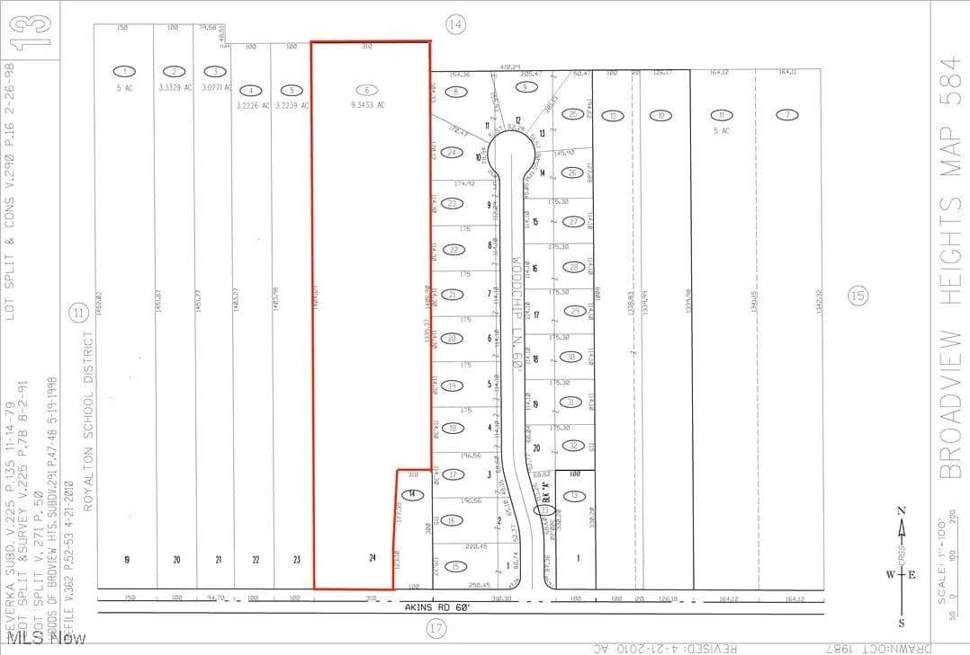
2022 Akins Road, Broadview Heights, Cuyahoga County, Ohio
Status:Active
Property Type
- Recreational Land
Acreage
9.34 acres
County
Cuyahoga
Format
Sale
Description
DON'T MISS this RARE OPPORTUNITY to BUILD YOUR DREAM HOME on this STUNNING, 9.34-acre lot in highly sought-after BROADVIEW HEIGHTS! This picturesque property offers a peaceful, wooded setting with potential to possibly split into multiple parcels, making it ideal for a private residence, multi-home, or future investment. All major utilities are available, including electric, gas, public water, and public sanitary sewer, ensuring a smooth build process. The lot is graced with mature trees that provide both natural beauty and privacy, while still being conveniently located near major highways, top-rated schools, shopping, restaurants, and the renowned Broadview Heights Recreation-Aquatics Center & Splash Park! Located at 2022 Akins Road, this property sits between State Rd and Broadview Rd, with 2108 Akins to the left and 2018 Akins to the right. Approximate front parcel boundary lines are marked with stakes for easy viewing. Showings are by appointment only and must be scheduled with an agent. An agent MUST accompany visitors to walk the lot. You may park at the front of the lot on the right side, which is adjacent to 2018 Akins Rd, but please do not park in the driveway of 2018 Akins. This is a RARE FIND in an EXCEPTIONAL LOCATION! Contact an agent today to explore the possibilities and take the first step toward building your dream home in the beautiful community of Broadview Heights, Ohio! (Selling as one parcel; Sellers will not split the lot. The red lines on some photos are for illustration purposes only and do not represent legal property lines. Consult County records for exact legal description.)
Listing Agent

Gregory Erlanger
Keller Williams Citywide
By submitting, you agree to our privacy policy and terms.

Want to learn more about our financing options?
Enter your email below to receive free resources and information.
By submitting, you agree to our privacy policy and terms.




























