Search Land - Lots & Land-Other in Dakota City
Lots & Land-Other in Dakota City
$40,000|Listed: Jan 7, 2025
MLS#611881969
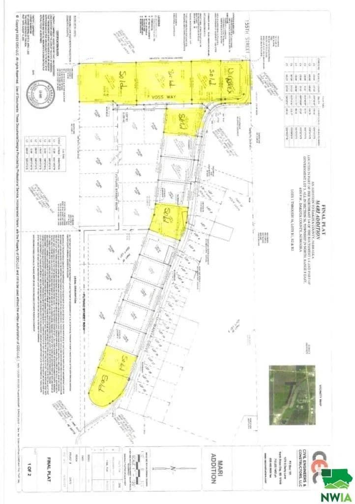
Lot 10 Lik-U-Wanta Drive, Dakota City, Dakota County, Nebraska
Status:Active
Property Type
- Acreage
Acreage
1.27 acres
County
Dakota
Format
Sale
Description
Fantastic building lot in a new housing development! This 1.27-acre lot is located just outside of South Sioux City, NE. If you're looking for a nice and spacious lot to build your dream house on, look no further! Close to shopping, restaurants, and more for your added convenience!
Listing Agent

Barbie Albenesius Heyl
ProLink
Sioux City, Iowa
By submitting, you agree to our privacy policy and terms.
Co-op approved lenders in Dakota County, Nebraska:

Find A Loan
Want to learn more about our financing options?
Enter your email below to receive free resources and information.
By submitting, you agree to our privacy policy and terms.
















