Search Land - Land -Single Family Acreage in Slingerlands
Land -Single Family Acreage in Slingerlands
$89,000|Listed: Feb 6, 2025
MLS#656196663
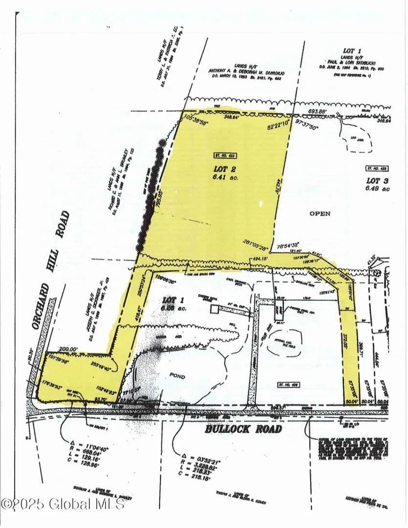
425A Bullock Road, Slingerlands, Albany County, New York
Status:Active
Property Type
- Home with Acreage
Acreage
0 acres
County
Albany, New York
Format
Sale
Description
Country living yet minutes to all the Capital Region has to offer! Wonderful 6+ acre parcel to build your new home. Views of the Helderbergs on your drive to & from. Well report in documents, nice area to build your home on a semi cleared parcel. Survey in process.Award winning Voorheesville schools. NO NOT access the property without an appointment scheduled. Please do not use neighboring driveway to access property, walk from the road.
Listing Agent
Kirsten Blanchard
Co-Op Member Owner
Prime Properties
Slingerlands, New York
By submitting, you agree to our privacy policy and terms.

Want to learn more about our financing options?
Enter your email below to receive free resources and information.
By submitting, you agree to our privacy policy and terms.









