Search Land - Property from OLD BROWNSVILLE RD - KW
Property from OLD BROWNSVILLE RD - KW
$623,675|Listed: Jun 8, 2024
MLS#708855610
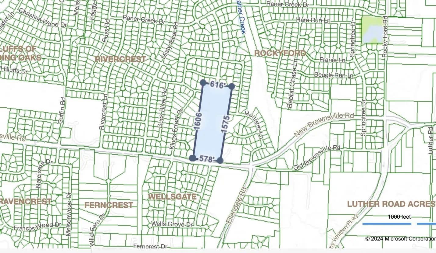
OLD BROWNSVILLE RD, Bartlett, Shelby County, Tennessee
Status:Active
Property Type
- Recreational Land
Acreage
21.91 acres
County
Shelby
Format
Sale
Description
Almost 22 acres of wooded land off of Old Brownsville Rd in Bartlett. Near the corner of Ellendale and Old Brownsville Rd. Look for the sales signs to mark the stop. Just down the road from Rivercrest Elementary School. Near the corner of Ellendale and Old Brownsville Rd.
Co-op approved lenders in Shelby County, Tennessee:

Find A Loan
Want to learn more about our financing options?
Enter your email below to receive free resources and information.
By submitting, you agree to our privacy policy and terms.

More land for sale from this broker
View All
Premier Listing
Property from OLD BROWNSVILLE RD - KW


$623,675|Listed: Jun 8, 2024
21.91 Acres
Bartlett, Tennessee, 38135














