Search Land - Property from 57&57D Tinker Ln and Pointer Way - KW
Property from 57&57D Tinker Ln and Pointer Way - KW
$400,000|Listed: Aug 20, 2025
MLS#710564917
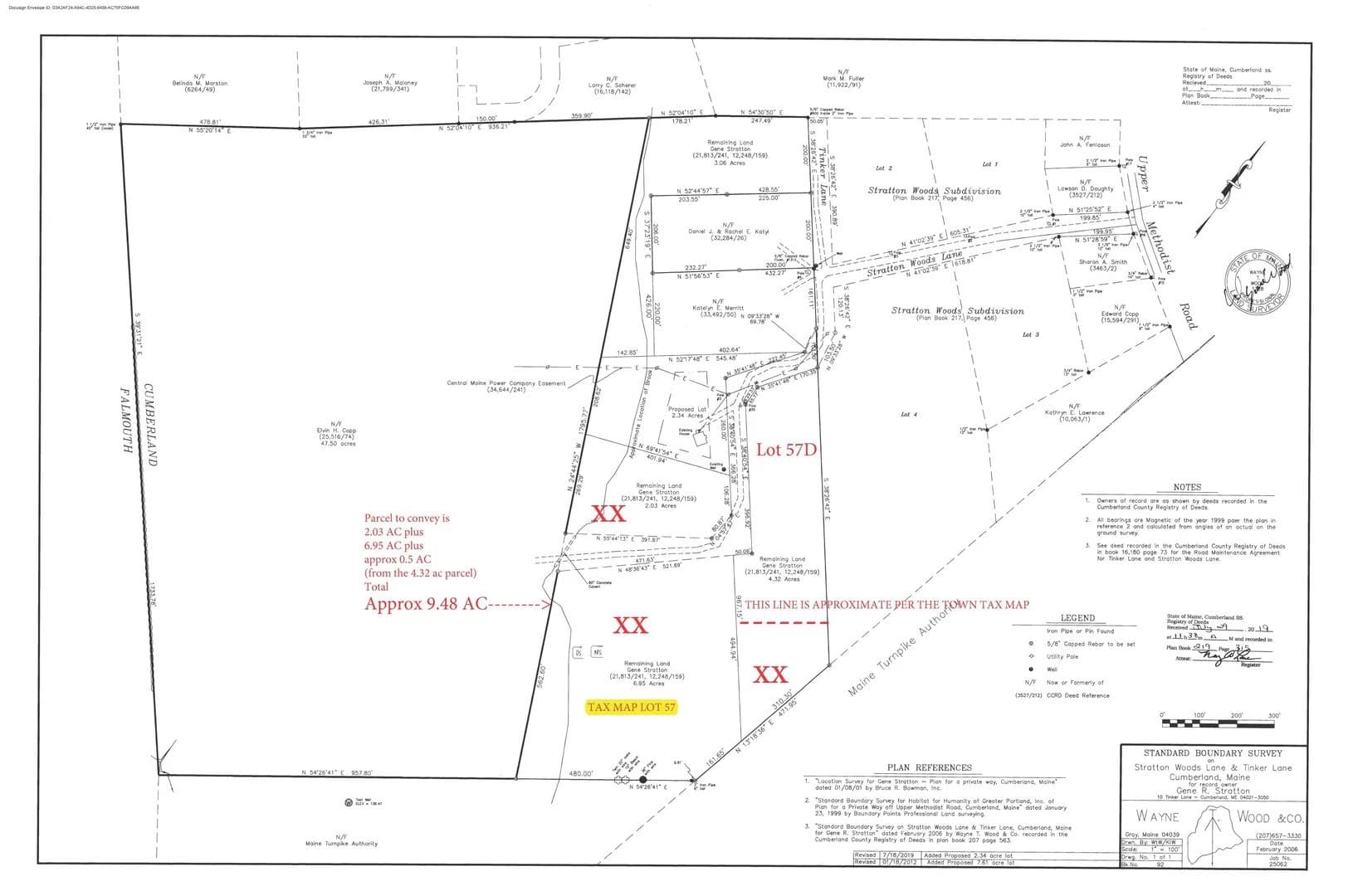
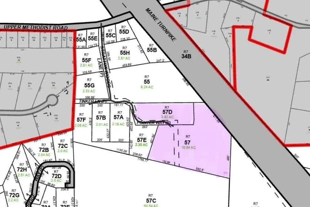
57&57D Tinker Ln and Pointer Way, Cumberland, Cumberland County, Maine
Status:Active
Property Type
- Recreational Land
Acreage
13.3 acres
County
Cumberland, Maine
Format
Sale
Description
Privacy abounds on these two separately taxed parcels that are adjacent to one another. Beautiful elevated sites await you on Tinker Lane and on both sides of Pointer Way which begins after the gate near the Pointer Way sign. The land continues on both sides of Pointer Way down the hill until the second gate. Please do not go through the second gate. A snowmobile trail on the left side of the gravel road (after gate #1) will take you to the flagged iron pin marking the boundary to the abutter on the right and the Turnpike buffer zone straight ahead. Once you are all the way down in the woods on that side, you will notice that the highway is high above, as the lot gently slopes down from the road providing a nice buffer. Walk to the left parallel with the highway to find the next iron pipe and pin.
With West Cumberland's recent development activity, this is a prime site to build your dream estate or to work on a subdivision plan to build more homes or condos. Buyers should check with the town for clarity on what would need to be done to improve the current gravel road prior to building a house. These two lots will also be available separately as 0 Tinker Lane and 0 Pointer Way.
Acreage on Tax records and Recorded survey differ. Listing is using the survey acreage, as it is smaller than town records. Buyer should verify.
Listing Agent

Ann Cianchette
Co-Op Member Owner
Keller Williams Realty
By submitting, you agree to our privacy policy and terms.

Want to learn more about our financing options?
Enter your email below to receive free resources and information.
By submitting, you agree to our privacy policy and terms.

More land for sale from this broker
View All
$175,000|Listed: Sep 4, 2025
13 Acres
New Gloucester, Maine, 4260

$250,000|Listed: Aug 20, 2025
9.48 Acres
Cumberland, Maine, 4021












