Search Land - Property from Market Street - KW
Property from Market Street - KW
$380,000|Listed: Nov 21, 2024
MLS#713156636
Market Street, North Lima, Mahoning County, Ohio
Status:Active
Property Type
- Recreational Land
Acreage
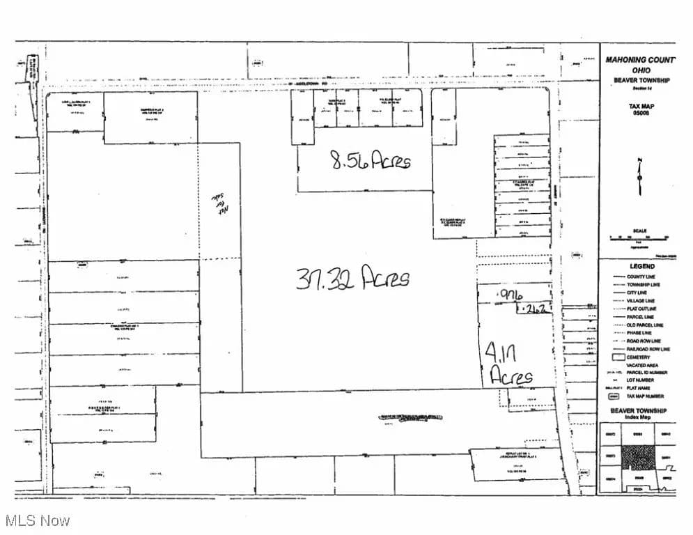
51.3 acres
County
Mahoning
Format
Sale
Description
An EXTRAORDINARY Opportunity awaits with this AMAZING 51+ Acre Property with 2 Investment Properties. Nestled in a TRANQUIL Setting, this Property Includes 2 Small Houses on Market Street plus 5 separate parcels of a Scenic, Wooded Parklike Paradise.
This could be a Farm, Horse Ranch, or your own Private Utopia to build your perfect home. Parcel Numbers Include:
05-006-0-003.00-0, 05-006-0-004.00-0, 05-006-0-005.00-0, 05-006-0-006.00-0, 05-006-0-022.00-0. Public Utilities are Available off Market Street - Electric, Gas, Water, Sewer, & Cable. Investment Property Addresses are: 11216 Market Street - 2144 Sq. Ft. Cape Cod. 11200 Market Street - 1518 Sq. Ft. Cape Cod. Both properties are vacant but were occupied this year. Rental Properties are being sold in their "as is" condition.
Listing Agent

Holly Ritchie
Keller Williams Chervenic Rlty
By submitting, you agree to our privacy policy and terms.

Want to learn more about our financing options?
Enter your email below to receive free resources and information.
By submitting, you agree to our privacy policy and terms.

More land for sale from this broker
View All
Premier Listing
$325,000|Listed: Aug 26, 2024
5 Acres
North Benton, Ohio, 44449

















