Search Land - Vacant Land in Greentown
Vacant Land in Greentown
$15,000|Listed: Sep 30, 2025
MLS#767520664
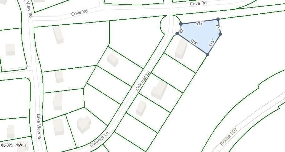
Colonial Lane, Greentown, Pennsylvania
Status:Active
Property Type
- Acreage
Acreage
0.54 acres
County
, Pennsylvania
Format
Sale
Description
Beautiful just over half an acre on a quiet Cul-De-Sac. why continue looking for the perfect home when you can build your own just the way you want it. Quiet dead end road makes for the perfect place to build. Just a hop, skip and a jump from beautiful lake Wallenpaupack. and promise land state park Nestled in the Pocono Mountain the possibilities are endless. Close to 84 for convivence and less then 2 hours from NYC makes this piece of land the perfect commuter location.
Listing Agent
Jessica Vetere
Co-Op Member Owner
Geba Realty
Milford, Pennsylvania
By submitting, you agree to our privacy policy and terms.

Want to learn more about our financing options?
Enter your email below to receive free resources and information.
By submitting, you agree to our privacy policy and terms.











