Search Land - Property from TBD US-54 - KW
Property from TBD US-54 - KW
$1,650,000|Listed: Sep 6, 2025
MLS#795620380
TBD US-54, Osage Beach, Camden County, Missouri
Status:Active
Property Type
- Recreational Land
Acreage
54 acres
County
Camden, Missouri
Format
Sale
Description
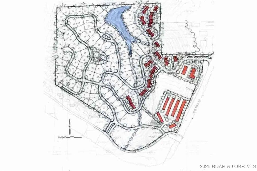
Exceptional development opportunity located on the northwest corner of Highway 54 and Runabout Drive in the heart of Osage Beach! Entitlements are in place to save you money and time! Great location for a Large Hotel/Resort, Theme Park, or Mixed use with Commercial alongside the Highway and Dense Residential behind it. Special Use Permit to allow a mixed residential development in Commercial District. This prime parcel boasts over 1,000 feet of coveted highway frontage and 54 acres, offering unmatched visibility and accessibility in one of the Lake area’s fastest-growing corridors. Uniquely zoned R-3 for both commercial and residential use, the property is positioned for maximum flexibility and return on investment. Current renderings showing 84 Single Family Homes and 44 Townhomes with Commercial Storefronts on the acreage along the highway. Or higher density is already approved! PLUS, CITY WATER AND SEWER AVAILABLE for hookup. Whether you’re seeking to capitalize on the booming demand for housing, expand retail and service options, or create a mixed-use destination, this land presents endless possibilities.
Listing Agent

GIBSON & GREIN GIBSON, ANDY
Co-Op Member Owner
Keller Williams L.O. Realty
By submitting, you agree to our privacy policy and terms.
Co-op Approved Lender
Want to learn more about our financing options?
Enter your email below to receive free resources and information.
By submitting, you agree to our privacy policy and terms.

More land for sale from this broker
View All
Premier Listing
$4,750,000|Listed: Mar 7, 2025
7.08 Acres
Lake Ozark, Missouri, 65049

Premier Listing
$3,000,000|Listed: Mar 7, 2025
5 Acres
Lake Ozark, Missouri, 65049

Premier Listing
$300,000|Listed: Mar 6, 2025
9.3 Acres
Osage Beach, Missouri, 65065

























































