Search Land - Property from 606 Beck Road - KW
Property from 606 Beck Road - KW
$1,500,000|Listed: May 9, 2025
MLS#797416123
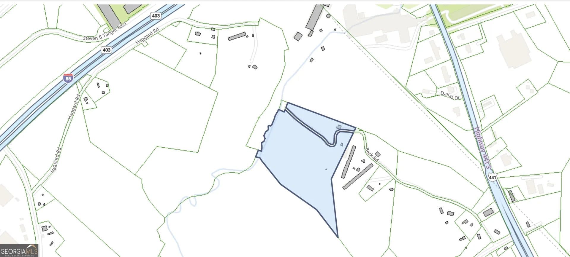
606 Beck Road, Commerce, Jackson County, Georgia
Status:Active
Property Type
- Farm
Acreage
30.89 acres
County
Jackson
Format
Sale
Features
- Water Well
Description
Many potential possibilities with this property. The land lays mostly flat with the majority of it being in pasture. A creek runs from the corner of the property down to the back of the property with a limited amount being in a flood plain. Currently the land is in a 10 Year Land Covenant that expires in 2028. There is an easement that runs through the property that connects to a sewer lift station that joins the property, a gravity and pressure main crosses the property. You have the ability if you wish to do so to tap onto the sewer. Conveniently located near 85 and just 5 minutes from Tanger Outlets.
Listing Agent

Bert Carithers
Keller Williams Realty Atl. Partners
By submitting, you agree to our privacy policy and terms.

Want to learn more about our financing options?
Enter your email below to receive free resources and information.
By submitting, you agree to our privacy policy and terms.

More land for sale from this broker
View All
Premier Listing
$650,000|Listed: Aug 16, 2025
69.46 Acres
Maysville, Georgia, 30558

Premier Listing
$1,592,000|Listed: Sep 20, 2025
48 Acres
Royston, Georgia, 30662

Premier Listing
$479,000|Listed: Feb 20, 2026
27.65 Acres
Royston, Georgia, 30662














