Search Land - Lots & Land-Other in Imlay
Lots & Land-Other in Imlay
$12,000|Listed: May 12, 2025
MLS#855918254
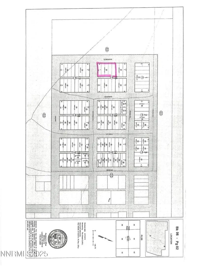
05 Shoshone St unit: 05, Imlay, Pershing County, Nevada
Status:Active
Property Type
- Acreage
Acreage
0.53 acres
County
Pershing, Nevada
Format
Sale
Description
.53 Acre Lot in Peaceful Imlay, NV. Tucked away in the quiet, welcoming community of Imlay with a small town feel. Easy access to I-80. If you are looking for a laid back lifestyle where everyone knows your name, this might be the perfect place to plant your roots.
Listing Agent
Esther Mendoza
Co-Op Member Owner
Sonoma Realty
Winnemucca, Nevada
By submitting, you agree to our privacy policy and terms.
Co-op approved lenders in Pershing County, Nevada:

Find A Loan
Want to learn more about our financing options?
Enter your email below to receive free resources and information.
By submitting, you agree to our privacy policy and terms.

More land for sale from this broker
View All
Lots & Land-Other in Crescent Valley


$20,000|Listed: Jan 7, 2025
20 Acres
Crescent Valley, Nevada, 89821











