Search Land - Property from Lot 1A Nobleboro Road - KW
Property from Lot 1A Nobleboro Road - KW
$585,000|Listed: Dec 11, 2025
MLS#857588182
Lot 1A Nobleboro Road, Bremen, Lincoln County, Maine
Status:Active
Property Type
- Recreational Land
Acreage
33.74 acres
County
Lincoln, Maine
Format
Sale
Description
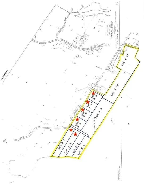
Available for the first time is a wonderful opportunity to buy one or two waterfront lots on one of the most pristine lakes in Midcoast Maine! Pemaquid Pond has an area in acres of 1537, a perimeter in miles of 23.8, mean water depth in feet of 20 and maximum water depth of 61. Both lots will have approximately 350' of water frontage and 30+/- acres of wooded privacy. Recent survey shows exact acreage. An easement from Nobleboro Road provides access to the far lot. Now's your chance to purchase one 30-acre waterfront lot or one 60+ acre waterfront lot. Come create your own waterfront paradise or develop this (see potential lot division sketch) beautiful, rare waterfront land. If you're looking for westerly sunset views from your waterfront lot in Maine, this is it!
Listing Agent

Kirsten Ingram
Co-Op Member Owner
Keller Williams Realty
By submitting, you agree to our privacy policy and terms.

Want to learn more about our financing options?
Enter your email below to receive free resources and information.
By submitting, you agree to our privacy policy and terms.



















