Search Land - 428 Main St., Windsor
428 Main St., Windsor
$1,675,000|Listed: May 30, 2025
MLS#1268047
428 Main St., Windsor, Colorado
Status:Active
Property Type
- Commercial Acreage
Acreage
0.1 acres
County
, Colorado
Format
Sale
Description
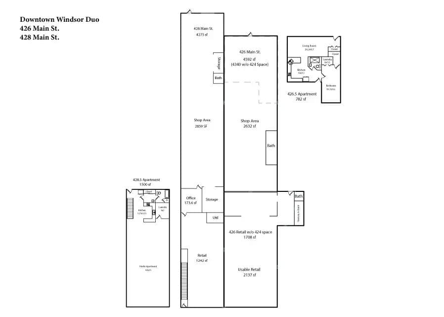
The 428 Main St. commercial building in downtown Windsor, CO offers 5,775 SF of combined retail, shop and apartment space, including 1,242 SF of storefront, 3,033 SF of back room and office space, plus a 2nd story apartment totaling 1500 SF. This opportunity for owner-operator or investment building offers includes Main St. frontage, development options, alley access and parking, and views of Windsor Lake. Land Located on the north side of Main St. in downtown Windsor, 428 Main St. includes Hwy 392 frontage with prime commercial location including storefront, shop space and apartment. This historic building has rear access and a rollup door to the alley, which is in the process of under-grounding utilities planned for current grade parking lot development. Vertical expansion is possible, since Downtown Windsor allows for buildings to be built to 45’, with potential opportunities in the future to build to 65’ contingent on the upcoming Town of Windsor legislature. There is also currently an optional purchase of the adjacent connected 426 Main St. building.
Improvements 428 Main St. is adjacent to another building for sale by the same owner, 426 Main St. These commercial buildings are connected to each other through multiple open doorways in the front retail space and back shop space.
With brick and block construction, this building has undergone recent major facade remodeling in 2022 including massive glass storefront windows, architectural lighting and decorative lights and awnings, new front door and atrium ceilings. Excellent retail lighting runs throughout both building giving displays ample exposure. Vintage brick walls and historic bead-board wood ceilings accent the 428 Main St. retail area, with a back room area including an office, shop area with major 3 phase electrical supply, restroom, plus a 2nd level apartment with Main St. access.
Square footage details: Square footage recently reported by Appraisal Dimensions, please see drawings attached. All room dimensions, including square footage data, are approximate and must be verified by the buyer.
The 428 Main St. includes a total of 4,275 SF of main level space, with 1,242 SF of this as retail space, while 3,033 SF make up the office and back shop space. Additionally there is a 1,500 SF Studio 2nd story apartment with separate Main St. stairway entry and a back rooftop deck facing Windsor Lake.
Open doorways that connect to 426 Main St. can be closed off following proper codes.
Building Details:
428 Main St:
Built in 1909
25′ wide x 171′ deep
14’ ceilings in Retail area, 9-10’ ceilings in back room area
3 Phase Power
Rewired in 1994 to copper including apartment
Replaced water pipe to PEX in 2018
Infrared ceiling heaters installed 1993/rebuilt 2023
Roof Ac/Heat in apartment
Furnace installed 1998
There is no current easement with the DDA for the Facade Improvement
Full Facade was $250k cost (for 426 and 428 Main) in 2022
Rooftop HVAC units replaced in 2013
New Water Heater in 2000
Mostly all LED lighting
New Flooring in retail area when facade was done
There is no letter regarding the past dry cleaning business (33 years ago)
428.5 Studio Apartment:
1500 SF Studio Apt.
14’ ceilings
Leased – $1600/mo, month to month, 2.5 year tenant, modified gross lease
Tenant pays gas + elec, Landlord pays water, sewer and trash
Remodeled in 2022
Roof replaced in 2008
Roof rubber sprayed “rubber defense” 2015
New rooftop HVAC in 2013
Water Heater in 2024
New front windows with Facade remodel in 2022
Updated Appliances included in sale
Utilities:
Electricity: XCEL
Gas: XCEL
Water: Town of Windsor
Recreation Downtown Windsor, CO, offers a charming mix of recreational activities perfect for all ages. Stroll along the scenic Windsor Lake, where you can enjoy paddleboarding, kayaking, or a relaxing picnic by the water. The area is dotted with unique shops, cozy cafes, and local breweries, making it a great spot for leisurely exploration. For those seeking more activity, Boardwalk Park hosts community events, live music, and a playground for family fun. Whether you’re into outdoor adventures or simply soaking up small-town charm, downtown Windsor has something for everyone.
Location Downtown Windsor offers shopping, dining, professional business, parks and recreation and a target rich environment for various business types. With over 12,000 vehicles passing by this location daily, this location offers tremendous branding opportunities and street presence.
Listing Agent

Dan Brunk
Co-Op Member Owner
Hayden Outdoors Real Estate
Windsor
By submitting, you agree to our privacy policy and terms.

Want to learn more about our financing options?
Enter your email below to receive free resources and information.
By submitting, you agree to our privacy policy and terms.




















