Search Land - 426 Main St., Windsor
426 Main St., Windsor
$1,575,000|Listed: May 30, 2025
MLS#1268048
426 Main St., Windsor, Colorado
Status:Active
Property Type
- Commercial Acreage
Acreage
0.09 acres
County
, Colorado
Format
Sale
Description
Top retail commercial building in downtown Windsor! The 426 Main St. building offers turnkey retail storefront space, including 1,708 SF of retail storefront, one bedroom apartment, and 2,632 SF of versatile shop space with high ceilings, plus a 1,808 SF unfinished basement. This is an excellent Main St. location that includes Windsor Lake views, shopping foot traffic, and room to grow your retail business or redevelop for other commercial uses. Land Situated in the heart of charming downtown Windsor, 426 Main St. offers a prime commercial location including front retail space with Hwy 392 frontage that sees over 12,000 cars a day. In addition there is an apartment with Windsor Lake views and rear access through an alley that is in the process of undergrounding utilities with plans for current grade parking lot development. Downtown Windsor allows for buildings to be built to 45’, with potential opportunities in the future to build to 65’ contingent on the upcoming Town of Windsor legislature. There is also currently an optional purchase of the adjacent 428 Main St. building.
Improvements This location can be used as a single owner operator or redevelopment into investment grade commercial real estate, including vertical apartments or restaurant space. The adjacent commercial buildings are connected to each other through multiple open doorways in the front retail space and back shop space.
With historic brick construction and gorgeous hardwood floors, 426 Main St. had a recent major facade remodeling in 2022 including massive glass storefront windows, architectural lighting and decorative lights and awnings, new front door and atrium ceilings. 426 Main St. includes a front retail area, bathroom and back shop area, with an apartment at the rear of the building and large unfinished basement.
Square Footage:
Square footage recently acquired by Appraisal Dimensions, please see drawings attached. All room dimensions, including square footage data, are approximate and must be verified by the buyer.
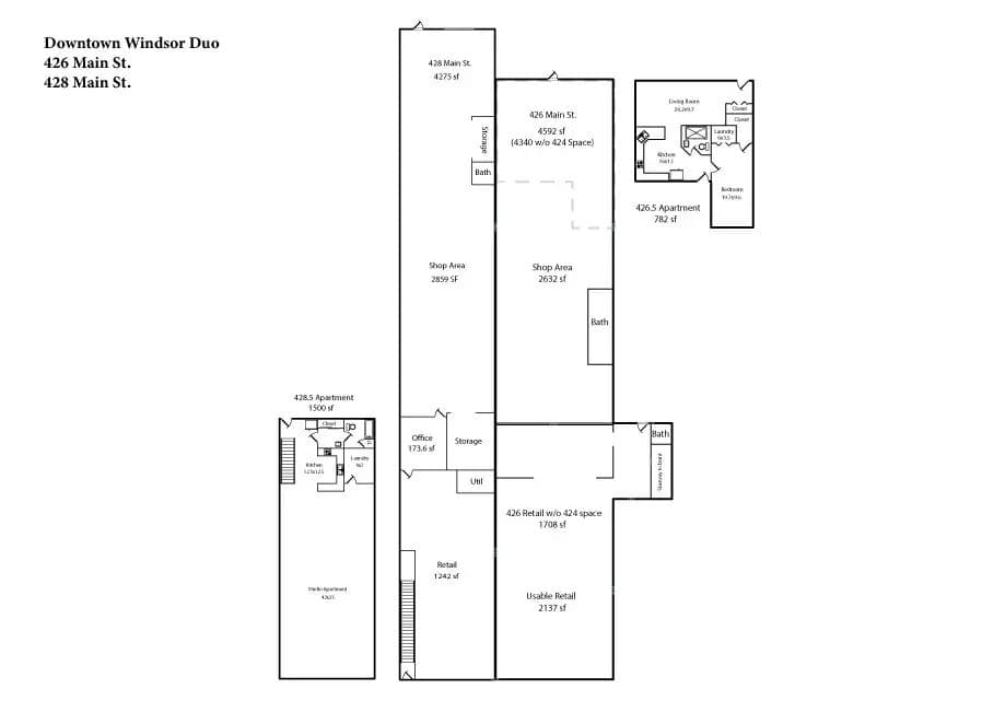
The 426 Main St. building offers 4,340 total main level square footage, which includes a 1,708 SF front retail space, 2,632 SF of back room/storage space plus a 782 SF one bedroom/one bath apartment with Windsor Lake views that is currently leased.
Additionally there are approximately 1,808 SF of unfinished basement space.
This building connects to the adjacent building, 428 Main St., through multiple open doorways.
In the event that the buyer seeks to purchase only 426 Main St., the open doorways to 428 Main St. can be closed off following proper codes. In addition, 428 Main St. are currently listed for sale with this building or on its own.
Building Details:
426 Main St:
Built in 1899.
Atrium has 14’ ceilings with 9-10’ drop ceiling in remaining retail area
14’ shop/storage area ceiling height
Replaced water heater in last 3-4 years
All LED lighting
Updated flooring
Roof rubber sprayed “rubber defense” 2015
New rooftop HVAC in 2013
426.5 Apartment:
1 Bedroom apartment
Just under 8’ ceilings
Leased – $1400/mo, 3 year Gross Lease
Landlord pays utilities
Appliances updated
Remodeled in 2021-2022
Appliances included in sale
Utilities:
Electricity: XCEL
Gas: XCEL
Water: Town of Windsor
Recreation Downtown Windsor, CO, offers a charming mix of recreational activities perfect for all ages. Stroll along the scenic Windsor Lake, where you can enjoy paddleboarding, kayaking, or a relaxing picnic by the water. The area is dotted with unique shops, cozy cafes, and local breweries, making it a great spot for leisurely exploration. For those seeking more activity, Boardwalk Park hosts community events, live music, and a playground for family fun. Whether you’re into outdoor adventures or simply soaking up small-town charm, downtown Windsor has something for everyone.
Location Downtown Windsor offers shopping, dining, professional business, parks and recreation and a target rich environment for various business types. With over 12,000 vehicles passing by this location daily, this location offers tremendous branding opportunities and street presence.
Listing Agent

Dan Brunk
Co-Op Member Owner
Hayden Outdoors Real Estate
Windsor
By submitting, you agree to our privacy policy and terms.

Want to learn more about our financing options?
Enter your email below to receive free resources and information.
By submitting, you agree to our privacy policy and terms.





















