Search Land - Property from L99 Edie Road - KW
Property from L99 Edie Road - KW
$900,000|Listed: Oct 8, 2025
MLS#248526139
L99 Edie Road, Wilton, Saratoga County, New York
Status:Active
Property Type
- Recreational Land
Acreage
64 acres
County
Saratoga, New York
Format
Sale
Description
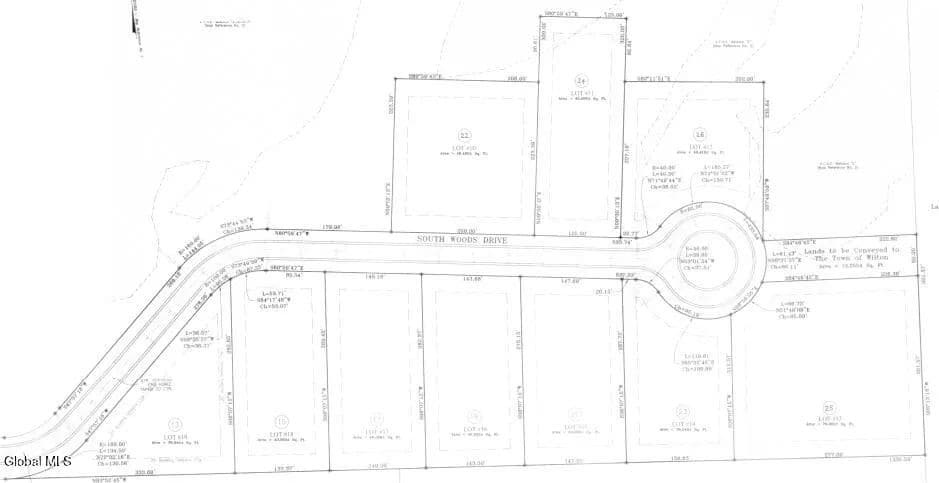
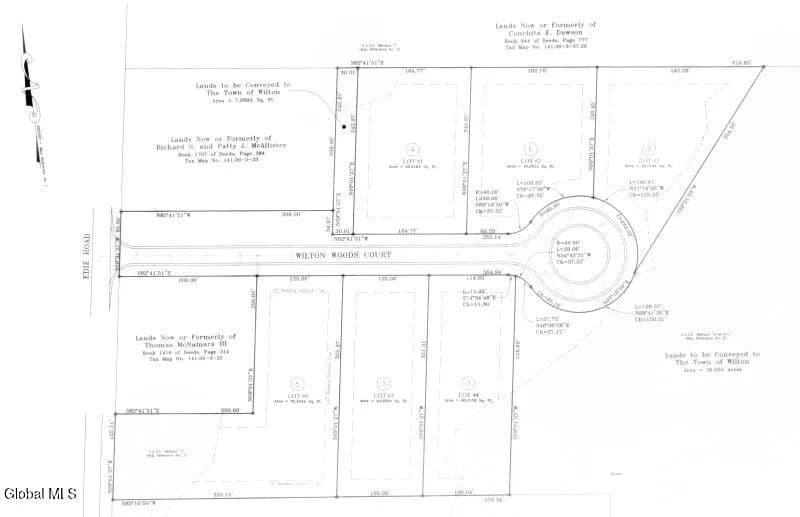
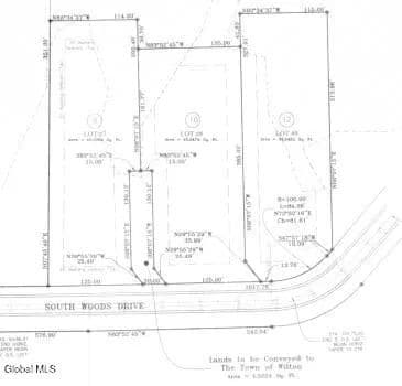
The Wilton Woods subdivision consists of approximately 64 acres of land to the east of Edie Road in the Town of Wilton, within the Saratoga Springs school district. The project is currently approved for 19 residential lots, approximately 1 acre in size each, on two proposed roads coming off of Edie Road, located near where both for sale signs are placed. The large tract of open space located in the center of the site is accepted by the Town of Wilton for ownership and management and consists of partial wetlands. There are currently 5 wells installed near the proposed north road (closer to Rt 50); however, there is availability for town water also. Perk tests have been performed and it has been determined adequate groundwater separation exists for the installation of onsite septic systems. Roads have yet to be built so plans would need to be updated to bring up to todays standards for construction and storm water
Listing Agent

Scott Varley
Co-Op Member Owner
KW Platform
By submitting, you agree to our privacy policy and terms.

Want to learn more about our financing options?
Enter your email below to receive free resources and information.
By submitting, you agree to our privacy policy and terms.

More land for sale from this broker
View All
$229,000|Listed: Dec 2, 2025
20.26 Acres
Stillwater, New York, 12170

$404,250|Listed: Aug 19, 2025
7.58 Acres
Saratoga Springs, New York, 12866


















